KALLITHEA | TWO-BEDROOM APARTMENT FOR SALE

  • €165,000

Overview

Property ID: GK0046
  • Apartment
  • Property Type
  • 2
  • Bedrooms
  • 2
  • Bathrooms
  • 1
  • Garage
  • 80
  • Under construction
  • Year Built

Description

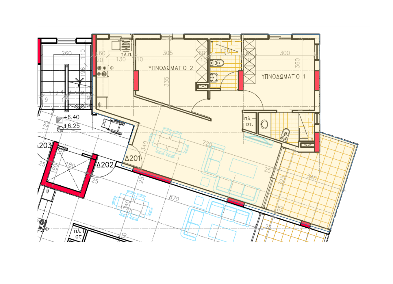
A two-bedroom apartment for sale in Kallithea. The apartment has an area of 80 sqm + 14 sqm verandas and it is set on the 2nd floor. It features two bathrooms, a storage room and a covered parking space. Other features of the property include provision for an electric car charger and a solar water heater. The apartment is currently under construction and it is situated in small apartment building, with just 6 apartments. It is located opposite a green space area, while it abuts a second green space area and a walkway.

Energy efficiency class: A

Price: €165.000 + VAT

.

Greek/Ελληνικά

Πωλείται διαμέρισμα υπό κατασκευή στην Καλλιθέα. Το εμβαδόν του διαμερίσματος είναι 80 τ.μ. + 14 τ.μ. βεράντες και βρίσκεται στον 2ο όροφο. Διαθέτει δύο υπνοδωμάτια, δύο μπάνια, αποθήκη και καλυμμένο χώρο στάθμευσης. Άλλα χαρακτηριστικά του ακινήτου περιλαμβάνουν πρόνοια για φορτιστή ηλεκτρικού αυτοκινήτου και ηλιακό θερμοσίφωνα. Το διαμέρισμα βρίσκεται σε μικρή πολυκατοικία με μόλις 6 διαμερίσματα η οποία βρίσκεται απέναντι από χώρο πρασίνου, ενώ συνορεύει με δεύτερο χώρο πρασίνου και πεζόδρομο.

Ενεργειακή απόδοση: Α με γενική θερμοπρόσοψη 8 εκατοστών

Τιμή: €165.000 + ΦΠΑ

Location

  • City Nicosia
  • Area Dali, Kallithea

Details

Updated on September 12, 2025
  • Property ID: GK0046
  • Price: €165,000
  • Property Size: 80 m²
  • Bedrooms: 2
  • Bathrooms: 2
  • Garage: 1
  • Year Built: Under construction
  • Property Type: Apartment
  • Property Status: For Sale
  • Furniture: Not Furnished

Additional details

  • Verandas: 14 sqm
  • Floor: 2nd
  • VAT: Yes

Schedule a Tour

Your information

Contact Information

P.G.H. Cypriani Estate Agents

Enquire About This Property

0 Review

Sort by:
Leave a Review

Leave a Review

Similar Listings

Compare listings

Compare
P.G.H. Cypriani Estate Agents
  • P.G.H. Cypriani Estate Agents